Elected Officials
Courts
Departments
Initiatives
Open Government
About
Login / Register
Home
/
Property & Tax Records
/
Property Records
/
Property & Tax Search
/
Parcel Profile
/
Sketches
Search for Another Parcel
Parcel Profile
Historical Card
Sketches
Photos
Tax Map
Taxes
Print View
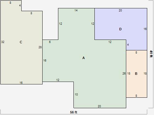
Address: 270 CHESTNUT DR
Parcel: 24002007100700
Parcel Sketches
Residential Card 1
A
MAIN
880 square feet
B
EFP ENCL FRAME PORCH
144 square feet
C
FR GR FRAME GARAGE 1/2FR FRAME HALF-STORY
480 square feet
D
WDDCK WOOD DECKS
272 square feet