Elected Officials
Courts
Departments
Initiatives
Open Government
About
Login / Register
Home
/
Property & Tax Records
/
Property Records
/
Property & Tax Search
/
Parcel Profile
/
Sketches
Search for Another Parcel
Parcel Profile
Historical Card
Sketches
Photos
Tax Map
Taxes
Print View
Address: 181 CHESTNUT ST
Parcel: 24002007200600
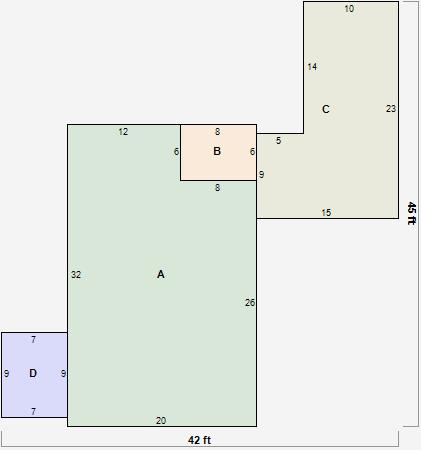
Parcel Sketches
Residential Card 1
A
MAIN
592 square feet
B
OFP OPEN FRAME PORCH
48 square feet
C
FR GR FRAME GARAGE
275 square feet
D
OFP OPEN FRAME PORCH
63 square feet