Elected Officials
Courts
Departments
Initiatives
Open Government
About
Login / Register
Home
/
Property & Tax Records
/
Property Records
/
Property & Tax Search
/
Parcel Profile
/
Sketches
Search for Another Parcel
Parcel Profile
Historical Card
Sketches
Photos
Tax Map
Taxes
Print View
Address: 187 FAIRPLAIN RD
Parcel: 24003010002100
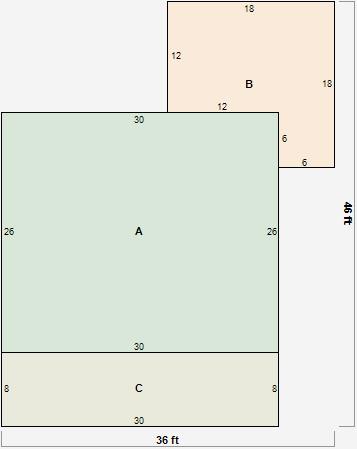
Parcel Sketches
Residential Card 1
A
MAIN
780 square feet
B
WDDCK WOOD DECKS
252 square feet
C
EFP ENCL FRAME PORCH
240 square feet