Elected Officials
Courts
Departments
Initiatives
Open Government
About
Login / Register
Home
/
Property & Tax Records
/
Property Records
/
Property & Tax Search
/
Parcel Profile
/
Sketches
Search for Another Parcel
Parcel Profile
Historical Card
Sketches
Photos
Tax Map
Taxes
Print View
Address: 10004 OLD RIDGE RD
Parcel: 24011056000400
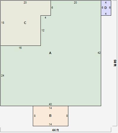
Parcel Sketches
Residential Card 1
A
MAIN
1368 square feet
B
OFP OPEN FRAME PORCH
112 square feet
C
UNFIN BSMT BASEMENT UNFINISHED 1S FR ONE STORY FRAME
312 square feet
D
EFP ENCL FRAME PORCH
24 square feet