Elected Officials
Courts
Departments
Initiatives
Open Government
About
Login / Register
Home
/
Property & Tax Records
/
Property Records
/
Property & Tax Search
/
Parcel Profile
/
Sketches
Search for Another Parcel
Parcel Profile
Historical Card
Sketches
Photos
Tax Map
Taxes
Print View
Address: 5919 DAGGETT RD
Parcel: 24013038000200
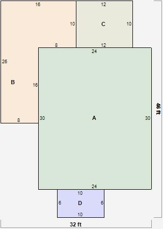
Parcel Sketches
Residential Card 1
A
MAIN
720 square feet
B
WDDCK WOOD DECKS
288 square feet
C
1S FR ONE STORY FRAME
120 square feet
D
WDDCK WOOD DECKS
60 square feet