Elected Officials
Courts
Departments
Initiatives
Open Government
About
Login / Register
Home
/
Property & Tax Records
/
Property Records
/
Property & Tax Search
/
Parcel Profile
/
Sketches
Search for Another Parcel
Parcel Profile
Historical Card
Sketches
Photos
Tax Map
Taxes
Print View
Address: 7581 GILMORE DR
Parcel: 24014049001800
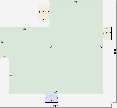
Parcel Sketches
Residential Card 1
A
MAIN
1604 square feet
B
MA_PT CONC/MAS PATIO
35 square feet
C
MA STOOP/TERR MAS STOOP
24 square feet
D
MA STOOP/TERR MAS STOOP
24 square feet