Elected Officials
Courts
Departments
Initiatives
Open Government
About
Login / Register
Home
/
Property & Tax Records
/
Property Records
/
Property & Tax Search
/
Parcel Profile
/
Sketches
Search for Another Parcel
Parcel Profile
Historical Card
Sketches
Photos
Tax Map
Taxes
Print View
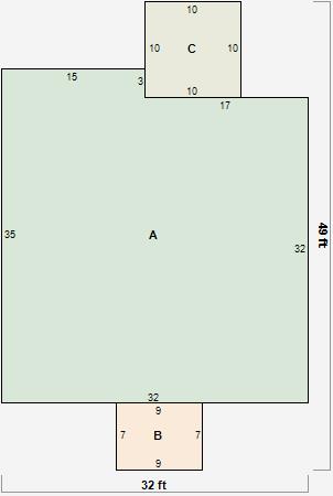
Address: 8190 94 WATTSBURG RD
Parcel: 25001004000800
Parcel Sketches
Residential Card 1
A
MAIN
1069 square feet
B
OMP OPEN MASONRY PORCH
63 square feet
C
EFP ENCL FRAME PORCH
100 square feet
Residential Card 2
A
MAIN
480 square feet
B
FR GR FRAME GARAGE
323 square feet