Elected Officials
Courts
Departments
Initiatives
Open Government
About
Login / Register
Home
/
Property & Tax Records
/
Property Records
/
Property & Tax Search
/
Parcel Profile
/
Sketches
Search for Another Parcel
Parcel Profile
Historical Card
Sketches
Photos
Tax Map
Taxes
Print View
Address: 8462 WATTSBURG RD
Parcel: 25001031001700
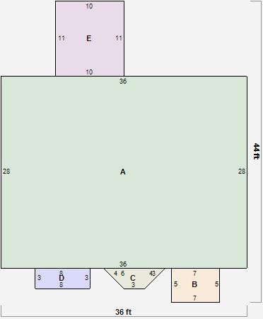
Parcel Sketches
Residential Card 1
A
MAIN
1008 square feet
B
WDDCK WOOD DECKS
35 square feet
C
FRBAY FRAME BAY
18 square feet
D
FROVR FRAME OVERHANG
24 square feet
E
EFP ENCL FRAME PORCH
110 square feet