Elected Officials
Courts
Departments
Initiatives
Open Government
About
Login / Register
Home
/
Property & Tax Records
/
Property Records
/
Property & Tax Search
/
Parcel Profile
/
Sketches
Search for Another Parcel
Parcel Profile
Historical Card
Sketches
Photos
Tax Map
Taxes
Print View
Address: 10301 BENNETT RD
Parcel: 25006018001800
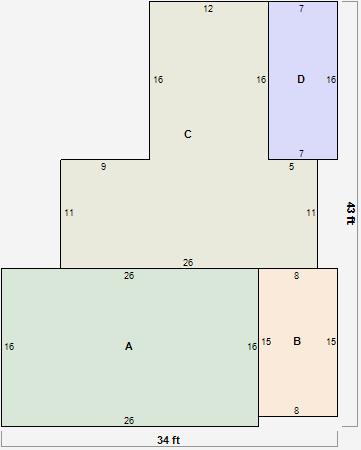
Parcel Sketches
Residential Card 1
A
MAIN
416 square feet
B
EFP ENCL FRAME PORCH
120 square feet
C
UNFIN BSMT BASEMENT UNFINISHED 1S FR ONE STORY FRAME
478 square feet
D
EFP ENCL FRAME PORCH
112 square feet