Elected Officials
Courts
Departments
Initiatives
Open Government
About
Login / Register
Home
/
Property & Tax Records
/
Property Records
/
Property & Tax Search
/
Parcel Profile
/
Sketches
Search for Another Parcel
Parcel Profile
Historical Card
Sketches
Photos
Tax Map
Taxes
Print View
Address: 9214 WATTSBURG RD
Parcel: 25011040000200
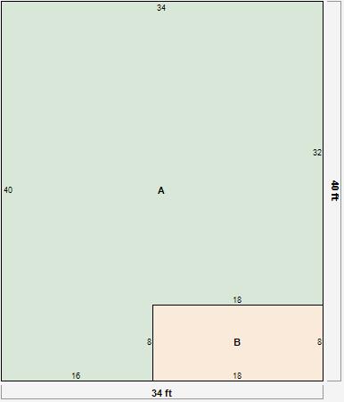
Parcel Sketches
Residential Card 1
A
MAIN
1216 square feet
B
MA STOOP/TERR MAS STOOP
144 square feet