Elected Officials
Courts
Departments
Initiatives
Open Government
About
Login / Register
Home
/
Property & Tax Records
/
Property Records
/
Property & Tax Search
/
Parcel Profile
/
Sketches
Search for Another Parcel
Parcel Profile
Historical Card
Sketches
Photos
Tax Map
Taxes
Print View
Address: 9185 WATTSBURG RD
Parcel: 25012039003301
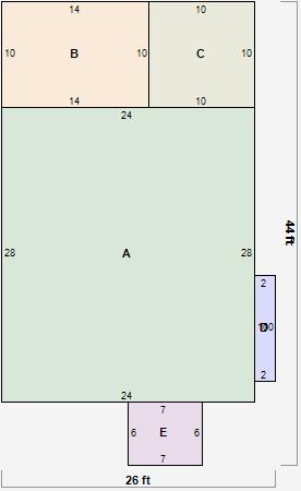
Parcel Sketches
Residential Card 1
A
MAIN
672 square feet
B
1S FR ONE STORY FRAME
140 square feet
C
EFP ENCL FRAME PORCH
100 square feet
D
FRBAY FRAME BAY
20 square feet
E
OFP OPEN FRAME PORCH
42 square feet