Elected Officials
Courts
Departments
Initiatives
Open Government
About
Login / Register
Home
/
Property & Tax Records
/
Property Records
/
Property & Tax Search
/
Parcel Profile
/
Sketches
Search for Another Parcel
Parcel Profile
Historical Card
Sketches
Photos
Tax Map
Taxes
Print View
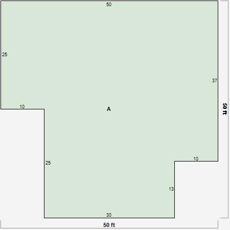
Address: 9188 LAKE PLEASANT RD
Parcel: 25012058000901
Parcel Sketches
Commercial Card 1
A
MAIN
2120 square feet