Elected Officials
Courts
Departments
Initiatives
Open Government
About
Login / Register
Home
/
Property & Tax Records
/
Property Records
/
Property & Tax Search
/
Parcel Profile
/
Sketches
Search for Another Parcel
Parcel Profile
Historical Card
Sketches
Photos
Tax Map
Taxes
Print View
Address: 9790 WATTSBURG RD
Parcel: 25016043001200
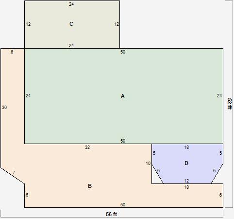
Parcel Sketches
Residential Card 1
A
MAIN
1200 square feet
B
OFP OPEN FRAME PORCH
812 square feet
C
WDDCK WOOD DECKS
288 square feet
D
FROVR FRAME OVERHANG
165 square feet