Elected Officials
Courts
Departments
Initiatives
Open Government
About
Login / Register
Home
/
Property & Tax Records
/
Property Records
/
Property & Tax Search
/
Parcel Profile
/
Sketches
Search for Another Parcel
Parcel Profile
Historical Card
Sketches
Photos
Tax Map
Taxes
Print View
Address: 9830 WATTSBURG RD
Parcel: 25016043001300
Parcel Sketches
Residential Card 1
A
MAIN
816 square feet
B
EFP ENCL FRAME PORCH
160 square feet
C
WDDCK WOOD DECKS
80 square feet
D
EFP ENCL FRAME PORCH
77 square feet
E
1S FR ONE STORY FRAME
64 square feet
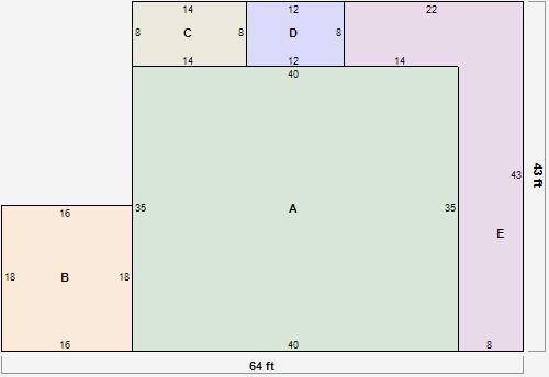
Residential Card 2
A
MAIN
1400 square feet
B
WDDCK WOOD DECKS
288 square feet
C
WDDCK WOOD DECKS
112 square feet
D
OFP OPEN FRAME PORCH
96 square feet
E
WDDCK WOOD DECKS
456 square feet