Elected Officials
Courts
Departments
Initiatives
Open Government
About
Login / Register
Home
/
Property & Tax Records
/
Property Records
/
Property & Tax Search
/
Parcel Profile
/
Sketches
Search for Another Parcel
Parcel Profile
Historical Card
Sketches
Photos
Tax Map
Taxes
Print View
Address: 11199 W GREENE RD
Parcel: 25019054003200
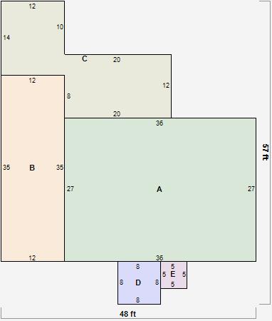
Parcel Sketches
Residential Card 1
A
MAIN
972 square feet
B
1S FR ONE STORY FRAME
420 square feet
C
WDDCK WOOD DECKS
408 square feet
D
EFP ENCL FRAME PORCH
64 square feet
E
WDDCK WOOD DECKS
25 square feet