Elected Officials
Courts
Departments
Initiatives
Open Government
About
Login / Register
Home
/
Property & Tax Records
/
Property Records
/
Property & Tax Search
/
Parcel Profile
/
Sketches
Search for Another Parcel
Parcel Profile
Historical Card
Sketches
Photos
Tax Map
Taxes
Print View
Address: 9504 OLD WATERFORD RD
Parcel: 25022059001300
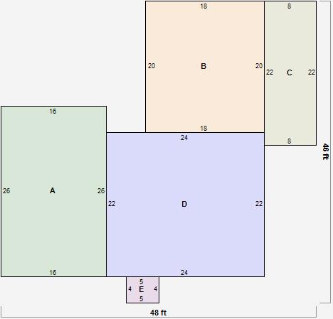
Parcel Sketches
Residential Card 1
A
MAIN
416 square feet
B
UNFIN BSMT BASEMENT UNFINISHED 1S FR ONE STORY FRAME
360 square feet
C
OFP OPEN FRAME PORCH
176 square feet
D
1S FR ONE STORY FRAME AT UN ATTIC-UNFINISHED
528 square feet
E
MA STOOP/TERR MAS STOOP
20 square feet