Elected Officials
Courts
Departments
Initiatives
Open Government
About
Login / Register
Home
/
Property & Tax Records
/
Property Records
/
Property & Tax Search
/
Parcel Profile
/
Sketches
Search for Another Parcel
Parcel Profile
Historical Card
Sketches
Photos
Tax Map
Taxes
Print View
Address: 5649 CLEMENS RD
Parcel: 25026067000103
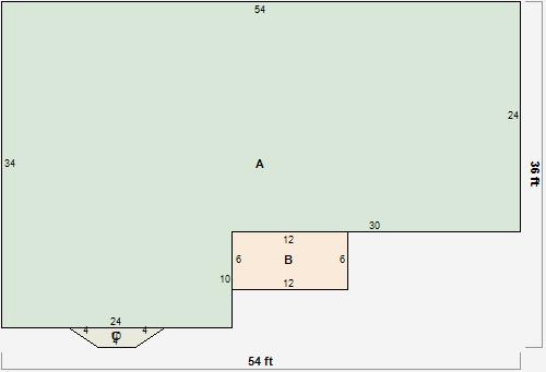
Parcel Sketches
Residential Card 1
A
MAIN
1536 square feet
B
UNFIN BSMT BASEMENT UNFINISHED MA STOOP/TERR MAS STOOP
72 square feet
C
FRBAY FRAME BAY
14 square feet