Elected Officials
Courts
Departments
Initiatives
Open Government
About
Login / Register
Home
/
Property & Tax Records
/
Property Records
/
Property & Tax Search
/
Parcel Profile
/
Sketches
Search for Another Parcel
Parcel Profile
Historical Card
Sketches
Photos
Tax Map
Taxes
Print View
Address: 8651 DOUGAN RD
Parcel: 26001021003300
Parcel Sketches
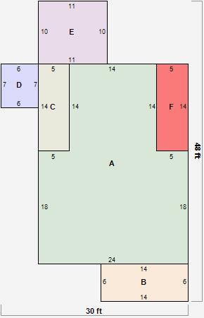
Residential Card 1
A
MAIN
628 square feet
B
MA STOOP/TERR MAS STOOP
84 square feet
C
1S FR ONE STORY FRAME
70 square feet
D
EFP ENCL FRAME PORCH
42 square feet
E
EFP ENCL FRAME PORCH
110 square feet
F
1S FR ONE STORY FRAME
70 square feet