Elected Officials
Courts
Departments
Initiatives
Open Government
About
Login / Register
Home
/
Property & Tax Records
/
Property Records
/
Property & Tax Search
/
Parcel Profile
/
Sketches
Search for Another Parcel
Parcel Profile
Historical Card
Sketches
Photos
Tax Map
Taxes
Print View
Address: 9115 STATION RD
Parcel: 26009024000100
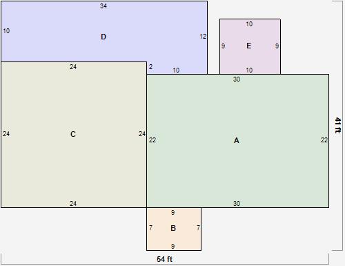
Parcel Sketches
Residential Card 1
A
MAIN
660 square feet
B
EFP ENCL FRAME PORCH
63 square feet
C
FROVR FRAME OVERHANG 1/2FR FRAME HALF-STORY
576 square feet
D
WDDCK WOOD DECKS
360 square feet
E
EFP ENCL FRAME PORCH
90 square feet