Elected Officials
Courts
Departments
Initiatives
Open Government
About
Login / Register
Home
/
Property & Tax Records
/
Property Records
/
Property & Tax Search
/
Parcel Profile
/
Sketches
Search for Another Parcel
Parcel Profile
Historical Card
Sketches
Photos
Tax Map
Taxes
Print View
Address: 9381 STATION RD
Parcel: 26009024002000
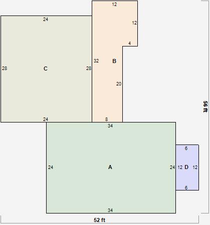
Parcel Sketches
Residential Card 1
A
MAIN
816 square feet
B
WDDCK WOOD DECKS
304 square feet
C
BSMT REC FINISH 1S FR ONE STORY FRAME
672 square feet
D
EFP ENCL FRAME PORCH
72 square feet