Elected Officials
Courts
Departments
Initiatives
Open Government
About
Login / Register
Home
/
Property & Tax Records
/
Property Records
/
Property & Tax Search
/
Parcel Profile
/
Sketches
Search for Another Parcel
Parcel Profile
Historical Card
Sketches
Photos
Tax Map
Taxes
Print View
Address: 10328 WILDMAN RD
Parcel: 26010027001100
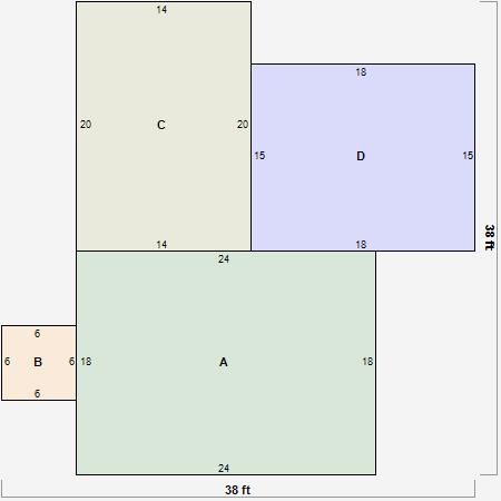
Parcel Sketches
Residential Card 1
A
MAIN
432 square feet
B
FR UT FRAME UTILITY BUILDING
36 square feet
C
1S FR ONE STORY FRAME
280 square feet
D
WDDCK WOOD DECKS
270 square feet