Elected Officials
Courts
Departments
Initiatives
Open Government
About
Login / Register
Home
/
Property & Tax Records
/
Property Records
/
Property & Tax Search
/
Parcel Profile
/
Sketches
Search for Another Parcel
Parcel Profile
Historical Card
Sketches
Photos
Tax Map
Taxes
Print View
Address: 10350 OLD ROUTE 89
Parcel: 26010029000202
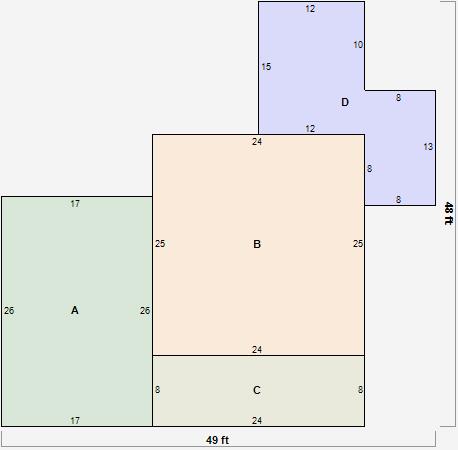
Parcel Sketches
Residential Card 1
A
MAIN
442 square feet
B
1S FR ONE STORY FRAME
600 square feet
C
OFP OPEN FRAME PORCH
192 square feet
D
WDDCK WOOD DECKS
284 square feet