Elected Officials
Courts
Departments
Initiatives
Open Government
About
Login / Register
Home
/
Property & Tax Records
/
Property Records
/
Property & Tax Search
/
Parcel Profile
/
Sketches
Search for Another Parcel
Parcel Profile
Historical Card
Sketches
Photos
Tax Map
Taxes
Print View
Address: 11880 WILSON RD
Parcel: 26011031001400
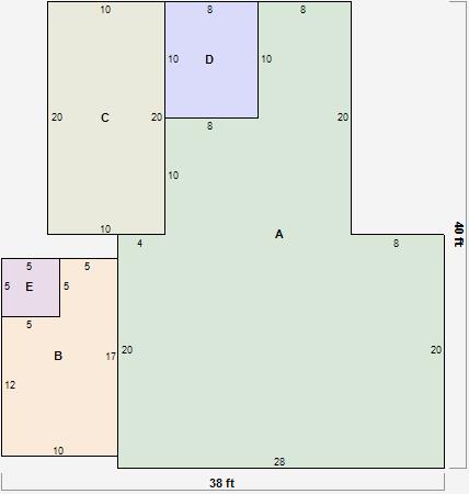
Parcel Sketches
Residential Card 1
A
MAIN
800 square feet
B
EFP ENCL FRAME PORCH
145 square feet
C
MA_PT CONC/MAS PATIO
200 square feet
D
1S FR ONE STORY FRAME 1S FR ONE STORY FRAME
80 square feet
E
OFP OPEN FRAME PORCH
25 square feet