Elected Officials
Courts
Departments
Initiatives
Open Government
About
Login / Register
Home
/
Property & Tax Records
/
Property Records
/
Property & Tax Search
/
Parcel Profile
/
Sketches
Search for Another Parcel
Parcel Profile
Historical Card
Sketches
Photos
Tax Map
Taxes
Print View
Address: 609 FAIR AVE
Parcel: 27008066000101
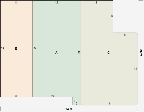
Parcel Sketches
Residential Card 1
A
MAIN
696 square feet
B
1S FR ONE STORY FRAME
140 square feet
C
1S FR ONE STORY FRAME
708 square feet
D
EFP ENCL FRAME PORCH
196 square feet
Residential Card 2
A
MAIN
292 square feet
B
1S FR ONE STORY FRAME
192 square feet
C
1S FR ONE STORY FRAME
316 square feet