Elected Officials
Courts
Departments
Initiatives
Open Government
About
Login / Register
Home
/
Property & Tax Records
/
Property Records
/
Property & Tax Search
/
Parcel Profile
/
Sketches
Search for Another Parcel
Parcel Profile
Historical Card
Sketches
Photos
Tax Map
Taxes
Print View
Address: 5831 E LAKE RD
Parcel: 27015042002300
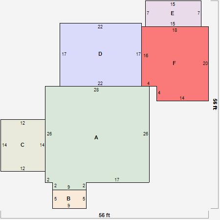
Parcel Sketches
Residential Card 1
A
MAIN
746 square feet
B
OFP OPEN FRAME PORCH
45 square feet
C
1S FR ONE STORY FRAME 1S FR ONE STORY FRAME
168 square feet
D
EFP ENCL FRAME PORCH
374 square feet
E
FR UT FRAME UTILITY BUILDING
105 square feet
F
FR GR FRAME GARAGE
344 square feet