Elected Officials
Courts
Departments
Initiatives
Open Government
About
Login / Register
Home
/
Property & Tax Records
/
Property Records
/
Property & Tax Search
/
Parcel Profile
/
Sketches
Search for Another Parcel
Parcel Profile
Historical Card
Sketches
Photos
Tax Map
Taxes
Print View
Address: 7238 BUFFALO RD
Parcel: 27021032004500
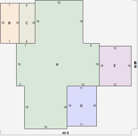
Parcel Sketches
Residential Card 1
A
MAIN
1040 square feet
B
WDDCK WOOD DECKS
105 square feet
C
EFP ENCL FRAME PORCH
90 square feet
D
EFP ENCL FRAME PORCH
165 square feet
E
WDDCK WOOD DECKS
180 square feet