Elected Officials
Courts
Departments
Initiatives
Open Government
About
Login / Register
Home
/
Property & Tax Records
/
Property Records
/
Property & Tax Search
/
Parcel Profile
/
Sketches
Search for Another Parcel
Parcel Profile
Historical Card
Sketches
Photos
Tax Map
Taxes
Print View
Address: 7625 BUFFALO RD
Parcel: 27021118001900
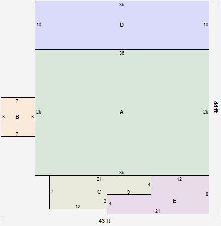
Parcel Sketches
Residential Card 1
A
MAIN
936 square feet
B
WDDCK WOOD DECKS
56 square feet
C
1S FR ONE STORY FRAME
120 square feet
D
UNFIN BSMT BASEMENT UNFINISHED 1S FR ONE STORY FRAME
360 square feet
E
WDDCK WOOD DECKS
132 square feet