Elected Officials
Courts
Departments
Initiatives
Open Government
About
Login / Register
Home
/
Property & Tax Records
/
Property Records
/
Property & Tax Search
/
Parcel Profile
/
Sketches
Search for Another Parcel
Parcel Profile
Historical Card
Sketches
Photos
Tax Map
Taxes
Print View
Address: 7850 E LAKE RD
Parcel: 27025019001100
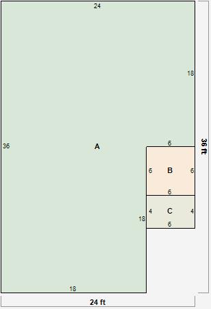
Parcel Sketches
Residential Card 1
A
MAIN
468 square feet
B
EFP ENCL FRAME PORCH
42 square feet
C
1S FR ONE STORY FRAME
264 square feet
D
WDDCK WOOD DECKS
180 square feet
E
WDDCK WOOD DECKS
252 square feet
F
EFP ENCL FRAME PORCH
152 square feet
G
UNFIN BSMT BASEMENT UNFINISHED 1S FR ONE STORY FRAME
560 square feet
H
EFP ENCL FRAME PORCH
308 square feet
Residential Card 2
A
MAIN
756 square feet
B
EFP ENCL FRAME PORCH
36 square feet
C
OFP OPEN FRAME PORCH
24 square feet