Elected Officials
Courts
Departments
Initiatives
Open Government
About
Login / Register
Home
/
Property & Tax Records
/
Property Records
/
Property & Tax Search
/
Parcel Profile
/
Sketches
Search for Another Parcel
Parcel Profile
Historical Card
Sketches
Photos
Tax Map
Taxes
Print View
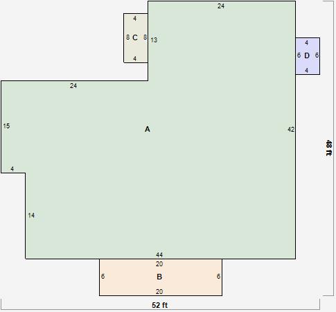
Address: 7651 E LAKE RD
Parcel: 27025031003900
Parcel Sketches
Residential Card 1
A
MAIN
1648 square feet
B
OFP OPEN FRAME PORCH
120 square feet
C
WDDCK WOOD DECKS
32 square feet
D
WDDCK WOOD DECKS
24 square feet