Elected Officials
Courts
Departments
Initiatives
Open Government
About
Login / Register
Home
/
Property & Tax Records
/
Property Records
/
Property & Tax Search
/
Parcel Profile
/
Sketches
Search for Another Parcel
Parcel Profile
Historical Card
Sketches
Photos
Tax Map
Taxes
Print View
Address: 8028 E LAKE RD
Parcel: 27026020000800
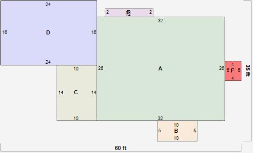
Parcel Sketches
Residential Card 1
A
MAIN
832 square feet
B
OFP OPEN FRAME PORCH
50 square feet
C
EFP ENCL FRAME PORCH
140 square feet
D
WDDCK WOOD DECKS
384 square feet
E
1S FR ONE STORY FRAME
24 square feet
F
OFP OPEN FRAME PORCH
20 square feet