Elected Officials
Courts
Departments
Initiatives
Open Government
About
Login / Register
Home
/
Property & Tax Records
/
Property Records
/
Property & Tax Search
/
Parcel Profile
/
Sketches
Search for Another Parcel
Parcel Profile
Historical Card
Sketches
Photos
Tax Map
Taxes
Print View
Address: 8020 DRIFTWOOD DR
Parcel: 27026021000600
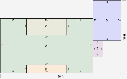
Parcel Sketches
Residential Card 1
A
MAIN
1002 square feet
B
OFP OPEN FRAME PORCH
80 square feet
C
EFP ENCL FRAME PORCH
160 square feet
D
FR GR FRAME GARAGE
280 square feet
E
MA STOOP/TERR MAS STOOP
40 square feet