Elected Officials
Courts
Departments
Initiatives
Open Government
About
Login / Register
Home
/
Property & Tax Records
/
Property Records
/
Property & Tax Search
/
Parcel Profile
/
Sketches
Search for Another Parcel
Parcel Profile
Historical Card
Sketches
Photos
Tax Map
Taxes
Print View
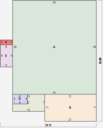
Address: 8467 E LAKE RD
Parcel: 27026029001200
Parcel Sketches
Residential Card 1
A
MAIN
1292 square feet
B
1S FR ONE STORY FRAME
231 square feet
C
OFP OPEN FRAME PORCH
91 square feet
D
EFP ENCL FRAME PORCH
24 square feet
E
1S FR ONE STORY FRAME
45 square feet
F
OFP OPEN FRAME PORCH
10 square feet