Address: 8424 E LAKE RD   Parcel: 27030026001800

Parcel Sketches


Residential Card 1

Residential Card 1
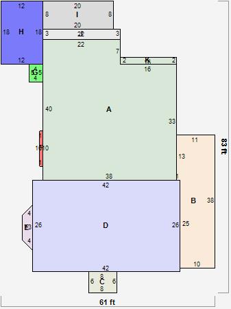
AMAIN1408 square feet
B MA_PT CONC/MAS PATIO 393 square feet
C OFP OPEN FRAME PORCH 48 square feet
D 1S FR ONE STORY FRAME 1/2FR FRAME HALF-STORY 1092 square feet
E FRBAY FRAME BAY 30 square feet
F FROVR FRAME OVERHANG 1S FR ONE STORY FRAME 10 square feet
G EFP ENCL FRAME PORCH 20 square feet
HUNFIN BSMT BASEMENT UNFINISHED 1S FR ONE STORY FRAME 216 square feet
I EFP ENCL FRAME PORCH WDDCK WOOD DECKS 160 square feet
J FROVR FRAME OVERHANG 66 square feet
K FROVR FRAME OVERHANG 32 square feet

Residential Card 2

Residential Card 2
AMAIN560 square feet
B WDDCK WOOD DECKS 240 square feet
C 1S FR ONE STORY FRAME 160 square feet

Residential Card 3

Residential Card 3
AMAIN588 square feet
B EFP ENCL FRAME PORCH 182 square feet
C OFP OPEN FRAME PORCH 9 square feet
D 1S FR ONE STORY FRAME 1S FR ONE STORY FRAME 410 square feet
E 1S FR ONE STORY FRAME WDDCK WOOD DECKS 216 square feet