Elected Officials
Courts
Departments
Initiatives
Open Government
About
Login / Register
Home
/
Property & Tax Records
/
Property Records
/
Property & Tax Search
/
Parcel Profile
/
Sketches
Search for Another Parcel
Parcel Profile
Historical Card
Sketches
Photos
Tax Map
Taxes
Print View
Address: 317 MOORHEADVILLE RD
Parcel: 27030027002200
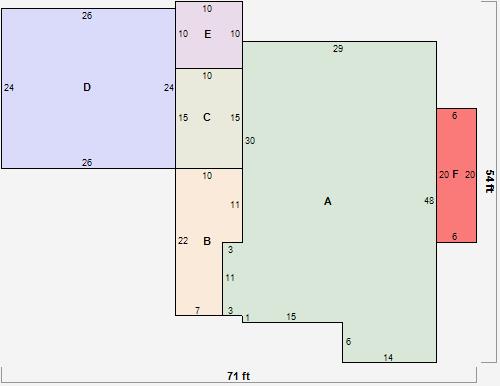
Parcel Sketches
Residential Card 1
A
MAIN
1335 square feet
B
OFP OPEN FRAME PORCH
187 square feet
C
1S FR ONE STORY FRAME
150 square feet
D
FR GR FRAME GARAGE
624 square feet
E
MA_PT CONC/MAS PATIO
100 square feet
F
EFP ENCL FRAME PORCH
120 square feet