Elected Officials
Courts
Departments
Initiatives
Open Government
About
Login / Register
Home
/
Property & Tax Records
/
Property Records
/
Property & Tax Search
/
Parcel Profile
/
Sketches
Search for Another Parcel
Parcel Profile
Historical Card
Sketches
Photos
Tax Map
Taxes
Print View
Address: 9086 BUFFALO RD
Parcel: 27031030000905
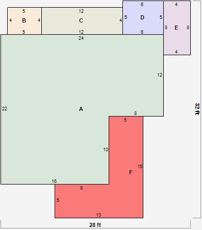
Parcel Sketches
Residential Card 1
A
MAIN
448 square feet
B
FR UT FRAME UTILITY BUILDING
20 square feet
C
1S FR ONE STORY FRAME
48 square feet
D
1S FR ONE STORY FRAME
30 square feet
E
WDDCK WOOD DECKS
32 square feet
F
OFP OPEN FRAME PORCH
115 square feet