Elected Officials
Courts
Departments
Initiatives
Open Government
About
Login / Register
Home
/
Property & Tax Records
/
Property Records
/
Property & Tax Search
/
Parcel Profile
/
Sketches
Search for Another Parcel
Parcel Profile
Historical Card
Sketches
Photos
Tax Map
Taxes
Print View
Address: 8388 BERNET RD
Parcel: 27031122000200
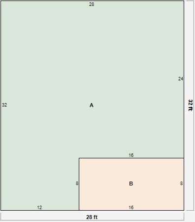
Parcel Sketches
Residential Card 1
A
MAIN
748 square feet
B
OFP OPEN FRAME PORCH
96 square feet
C
1S FR ONE STORY FRAME
264 square feet
D
1S FR ONE STORY FRAME
510 square feet
E
OFP OPEN FRAME PORCH
128 square feet
Residential Card 2
A
MAIN
768 square feet
B
OFP OPEN FRAME PORCH
128 square feet