Elected Officials
Courts
Departments
Initiatives
Open Government
About
Login / Register
Home
/
Property & Tax Records
/
Property Records
/
Property & Tax Search
/
Parcel Profile
/
Sketches
Search for Another Parcel
Parcel Profile
Historical Card
Sketches
Photos
Tax Map
Taxes
Print View
Address: 7967 SLADE RD
Parcel: 27032124000500
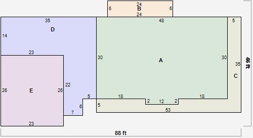
Parcel Sketches
Residential Card 1
A
MAIN
1464 square feet
B
UNFIN BSMT BASEMENT UNFINISHED 1S FR ONE STORY FRAME
144 square feet
C
OFP OPEN FRAME PORCH
391 square feet
D
1S FR ONE STORY FRAME
724 square feet
E
FR GR FRAME GARAGE
598 square feet
F
1S FR ONE STORY FRAME
-168 square feet