Elected Officials
Courts
Departments
Initiatives
Open Government
About
Login / Register
Home
/
Property & Tax Records
/
Property Records
/
Property & Tax Search
/
Parcel Profile
/
Sketches
Search for Another Parcel
Parcel Profile
Historical Card
Sketches
Photos
Tax Map
Taxes
Print View
Address: 8982 BELLE RD
Parcel: 27032124001400
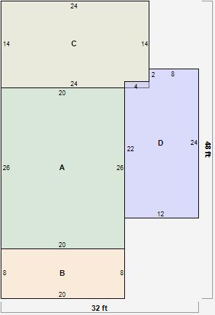
Parcel Sketches
Residential Card 1
A
MAIN
520 square feet
B
OFP OPEN FRAME PORCH
160 square feet
C
1S FR ONE STORY FRAME
336 square feet
D
1S FR ONE STORY FRAME
280 square feet