Elected Officials
Courts
Departments
Initiatives
Open Government
About
Login / Register
Home
/
Property & Tax Records
/
Property Records
/
Property & Tax Search
/
Parcel Profile
/
Sketches
Search for Another Parcel
Parcel Profile
Historical Card
Sketches
Photos
Tax Map
Taxes
Print View
Address: 6806 BUFFALO RD
Parcel: 27034033010400
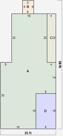
Parcel Sketches
Residential Card 1
A
MAIN
958 square feet
B
WDDCK WOOD DECKS
30 square feet
C
1S FR ONE STORY FRAME
88 square feet
D
OFP OPEN FRAME PORCH
144 square feet