Elected Officials
Courts
Departments
Initiatives
Open Government
About
Login / Register
Home
/
Property & Tax Records
/
Property Records
/
Property & Tax Search
/
Parcel Profile
/
Sketches
Search for Another Parcel
Parcel Profile
Historical Card
Sketches
Photos
Tax Map
Taxes
Print View
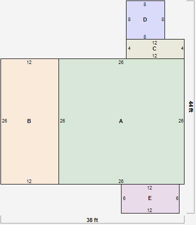
Address: 6961 ORCHARD AVE
Parcel: 27034115000100
Parcel Sketches
Residential Card 1
A
MAIN
676 square feet
B
UNFIN BSMT BASEMENT UNFINISHED 1S FR ONE STORY FRAME
312 square feet
C
EFP ENCL FRAME PORCH
48 square feet
D
MA STOOP/TERR MAS STOOP
64 square feet
E
EFP ENCL FRAME PORCH
72 square feet