Elected Officials
Courts
Departments
Initiatives
Open Government
About
Login / Register
Home
/
Property & Tax Records
/
Property Records
/
Property & Tax Search
/
Parcel Profile
/
Sketches
Search for Another Parcel
Parcel Profile
Historical Card
Sketches
Photos
Tax Map
Taxes
Print View
Address: 7065 BUFFALO RD
Parcel: 27036117000902
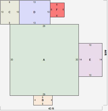
Parcel Sketches
Residential Card 1
A
MAIN
870 square feet
B
EFP ENCL FRAME PORCH
32 square feet
C
WDDCK WOOD DECKS
80 square feet
D
OFP OPEN FRAME PORCH OFP OPEN FRAME PORCH
130 square feet
E
1S FR ONE STORY FRAME
140 square feet
F
1S FR ONE STORY FRAME 1S FR ONE STORY FRAME
36 square feet