Elected Officials
Courts
Departments
Initiatives
Open Government
About
Login / Register
Home
/
Property & Tax Records
/
Property Records
/
Property & Tax Search
/
Parcel Profile
/
Sketches
Search for Another Parcel
Parcel Profile
Historical Card
Sketches
Photos
Tax Map
Taxes
Print View
Address: 4829 BUFFALO RD
Parcel: 27040146000200
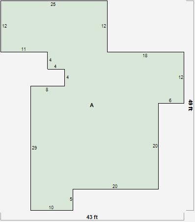
Parcel Sketches
Commercial Card 1
A
MAIN
420 square feet
B
MAIN
810 square feet
C
MAIN
1128 square feet
Commercial Card 4
A
MAIN
1284 square feet