Elected Officials
Courts
Departments
Initiatives
Open Government
About
Login / Register
Home
/
Property & Tax Records
/
Property Records
/
Property & Tax Search
/
Parcel Profile
/
Sketches
Search for Another Parcel
Parcel Profile
Historical Card
Sketches
Photos
Tax Map
Taxes
Print View
Address: 2415 SALTSMAN RD
Parcel: 27042139000300
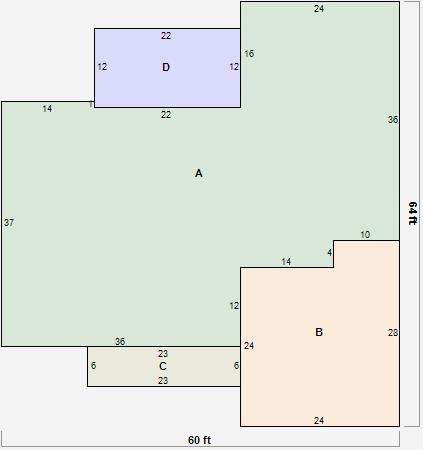
Parcel Sketches
Residential Card 1
A
MAIN
2230 square feet
B
FR GR FRAME GARAGE
616 square feet
C
OFP OPEN FRAME PORCH
138 square feet
D
OFP OPEN FRAME PORCH
264 square feet