Elected Officials
Courts
Departments
Initiatives
Open Government
About
Login / Register
Home
/
Property & Tax Records
/
Property Records
/
Property & Tax Search
/
Parcel Profile
/
Sketches
Search for Another Parcel
Parcel Profile
Historical Card
Sketches
Photos
Tax Map
Taxes
Print View
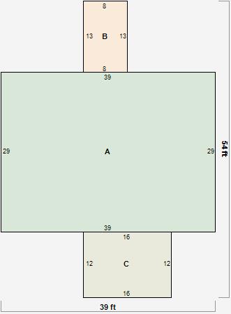
Address: 5752 CLARK RD
Parcel: 27061136008202
Parcel Sketches
Residential Card 1
A
MAIN
1131 square feet
B
EFP ENCL FRAME PORCH
104 square feet
C
EFP ENCL FRAME PORCH
192 square feet