Elected Officials
Courts
Departments
Initiatives
Open Government
About
Login / Register
Home
/
Property & Tax Records
/
Property Records
/
Property & Tax Search
/
Parcel Profile
/
Sketches
Search for Another Parcel
Parcel Profile
Historical Card
Sketches
Photos
Tax Map
Taxes
Print View
Address: 7246 MCGILL RD
Parcel: 27062206004700
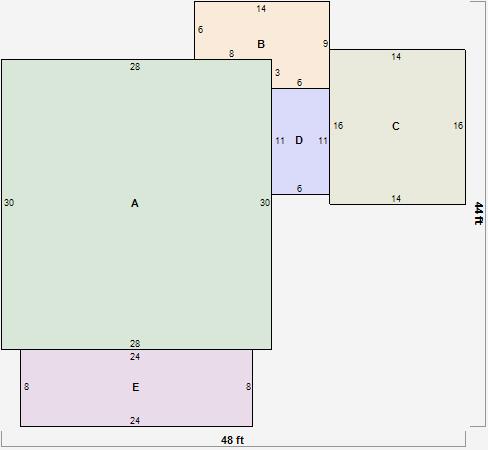
Parcel Sketches
Residential Card 1
A
MAIN
840 square feet
B
1S FR ONE STORY FRAME
102 square feet
C
CARPT CARPORT
224 square feet
D
OFP OPEN FRAME PORCH
66 square feet
E
OFP OPEN FRAME PORCH
192 square feet
Residential Card 2
A
MAIN
1200 square feet
B
WDDCK WOOD DECKS
192 square feet
C
OFP OPEN FRAME PORCH
36 square feet