Elected Officials
Courts
Departments
Initiatives
Open Government
About
Login / Register
Home
/
Property & Tax Records
/
Property Records
/
Property & Tax Search
/
Parcel Profile
/
Sketches
Search for Another Parcel
Parcel Profile
Historical Card
Sketches
Photos
Tax Map
Taxes
Print View
Address: 7053 CLARK RD
Parcel: 27064136009900
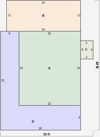
Parcel Sketches
Residential Card 1
A
MAIN
480 square feet
B
1S FR ONE STORY FRAME
240 square feet
C
OFP OPEN FRAME PORCH
24 square feet
D
OFP OPEN FRAME PORCH
352 square feet