Elected Officials
Courts
Departments
Initiatives
Open Government
About
Login / Register
Home
/
Property & Tax Records
/
Property Records
/
Property & Tax Search
/
Parcel Profile
/
Sketches
Search for Another Parcel
Parcel Profile
Historical Card
Sketches
Photos
Tax Map
Taxes
Print View
Address: 4826 SHANNON RD
Parcel: 27069221000600
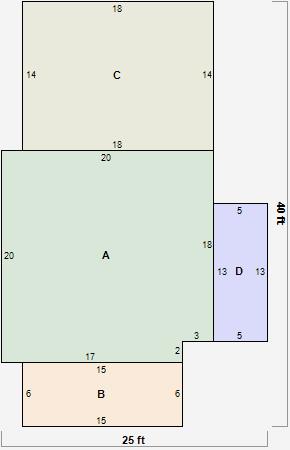
Parcel Sketches
Residential Card 1
A
MAIN
394 square feet
B
1S FR ONE STORY FRAME
90 square feet
C
UNFIN BSMT BASEMENT UNFINISHED 1S FR ONE STORY FRAME
252 square feet
D
OFP OPEN FRAME PORCH
65 square feet