Elected Officials
Courts
Departments
Initiatives
Open Government
About
Login / Register
Home
/
Property & Tax Records
/
Property Records
/
Property & Tax Search
/
Parcel Profile
/
Sketches
Search for Another Parcel
Parcel Profile
Historical Card
Sketches
Photos
Tax Map
Taxes
Print View
Address: 3132 NORCROSS RD
Parcel: 27069221002000
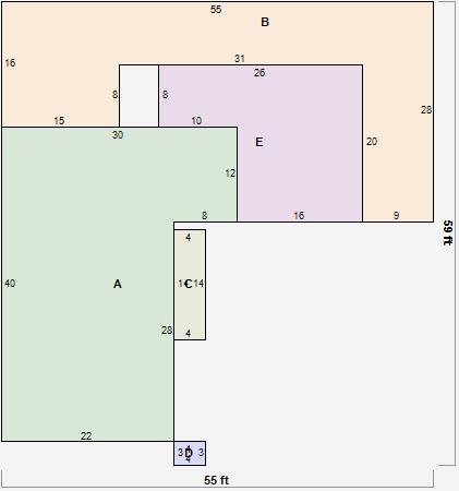
Parcel Sketches
Residential Card 1
A
MAIN
976 square feet
B
WDDCK WOOD DECKS
740 square feet
C
1S FR ONE STORY FRAME
56 square feet
D
EFP ENCL FRAME PORCH
12 square feet
E
UNFIN BSMT BASEMENT UNFINISHED MG/BG MASONRY/BRICK GARAGE AT UN ATTIC-UNFINISHED
400 square feet