Elected Officials
Courts
Departments
Initiatives
Open Government
About
Login / Register
Home
/
Property & Tax Records
/
Property Records
/
Property & Tax Search
/
Parcel Profile
/
Sketches
Search for Another Parcel
Parcel Profile
Historical Card
Sketches
Photos
Tax Map
Taxes
Print View
Address: 7078 HARBORGREEN RD
Parcel: 27073228001000
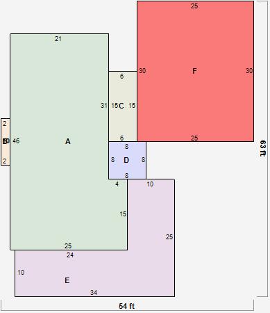
Parcel Sketches
Residential Card 1
A
MAIN
1026 square feet
B
FRBAY FRAME BAY
20 square feet
C
EFP ENCL FRAME PORCH
90 square feet
D
EFP ENCL FRAME PORCH 1S FR ONE STORY FRAME
64 square feet
E
OFP OPEN FRAME PORCH
490 square feet
F
FR GR FRAME GARAGE
750 square feet