Elected Officials
Courts
Departments
Initiatives
Open Government
About
Login / Register
Home
/
Property & Tax Records
/
Property Records
/
Property & Tax Search
/
Parcel Profile
/
Sketches
Search for Another Parcel
Parcel Profile
Historical Card
Sketches
Photos
Tax Map
Taxes
Print View
Address: 10328 W LAKE RD
Parcel: 28002002000801
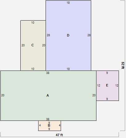
Parcel Sketches
Residential Card 1
A
MAIN
760 square feet
B
1S FR ONE STORY FRAME
36 square feet
C
WDDCK WOOD DECKS
200 square feet
D
1S FR ONE STORY FRAME
504 square feet
E
OFP OPEN FRAME PORCH
108 square feet